Agtrup Gårdhuse

SENIORBOLIGER TIL LEJE I AGTRUP VED KOLDING

Drømmeboliger til voksne med seniorvenlig indretning i et plan

Den gamle Agtrup Gård genopstår nu som seniorboliger under navnet Agtrup Gårdhuse. Der er lagt vægt på mindre private områder, som skal være nemme at holde og store grønne fællesopholdsområder, som holdes af udlejer.

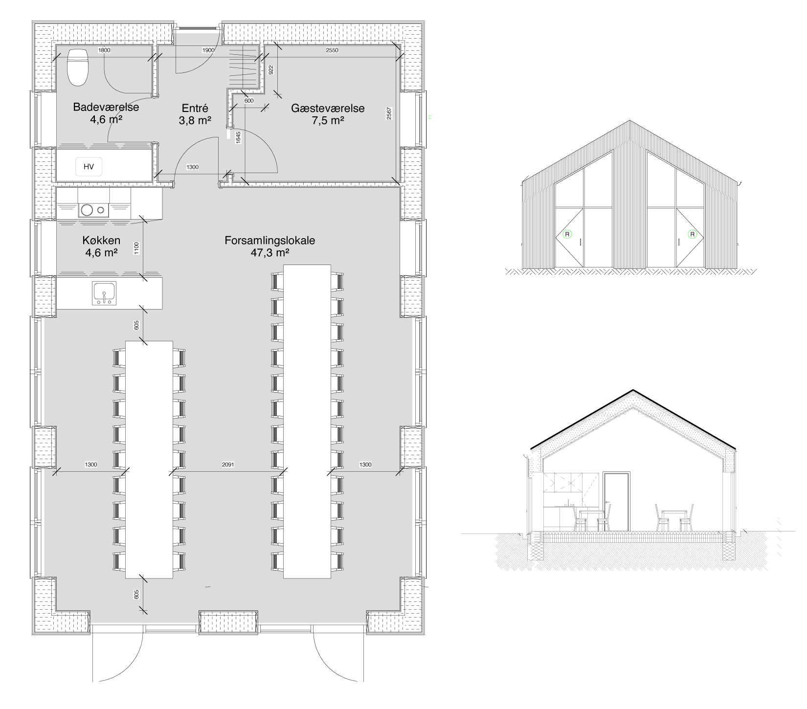
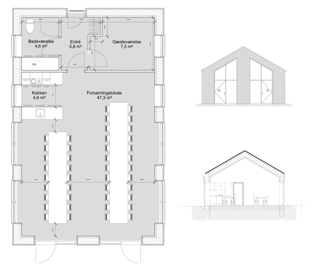
Boligområdet kommer til at bestå af 27 boliger og et fælleshus.

Skriv dig på interessentliste eller tilmeld dig vores Facebookgruppe og bliv løbende opdateret.

FAKTA

6 kilometer til Kolding centrum

150 meter til Rema 1000 i Agtrup

200 meter til offentlig busforbindelse

3-værelses boliger

Seniorfællesskab 50+

Fælleshus til samvær

Kontakt os vedr. lejeboligerne i dag

Læs vores privatlivspolitik her.

Alternativt send en mail til ne@houseofinnovation.dk eller ring til 70 70 28 00

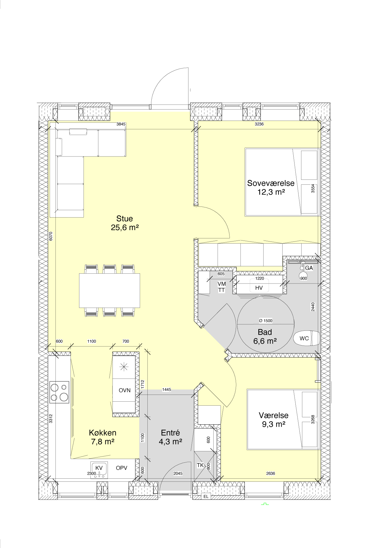
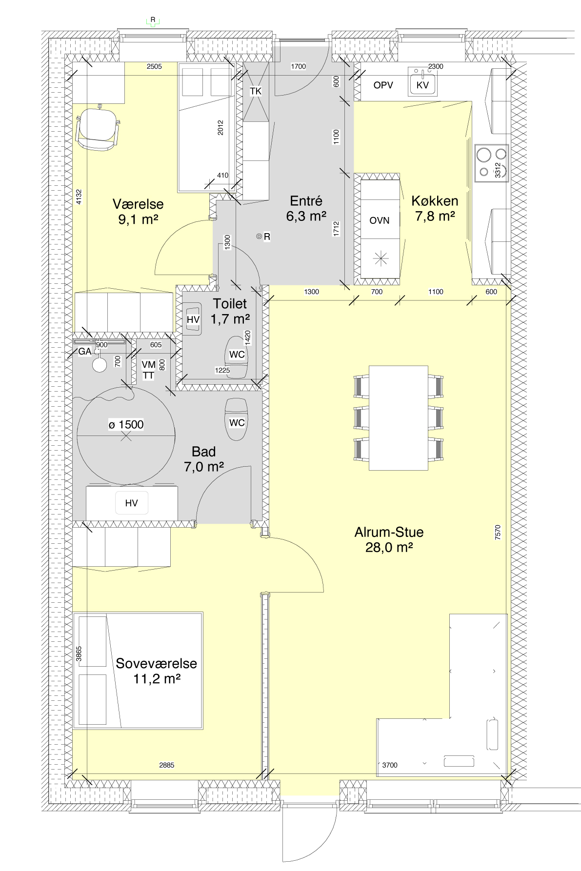
Boligtyper

Agtrup Gårdhuse består af to seniorvenlige boligtyper

 

 

Kongehuset i et plan

6 stk. 3-vær. boliger i et plan á 80 m2 brutto

Rækkehuse i et plan

21 stk. 3-vær. et plans boliger á 85 m2 brutto 

Fælleshus

Fælleshuset er til alle beboeres fælles benyttelse ud fra de retningslinjer, som lejerne i fællesskab beslutter. I fælleshuset kan lejerne være fælles om f.eks. brætspil, måltider, fester, yoga eller anden aktivitet. 


Se overblik over ledige og udlejede boliger i Agtrup Gårdhuse

Ring på 70 70 28 00 eller skriv til os for at blive skrevet på interessentlisten for Agtrup Gårdhuse.
Du kan se placeringen af boligerne ved at klikke på billedet herunder:

Agtrup Gårdhuse, plantegning
Klik på billedet og se situationsplanen
[supsystic-tables id=1]

Lejeprisen for boligerne ligger mellem 9200 og 9440 pr. måned. 

Alle priser er + forbrug. Vi tager forbehold for fejl og ændringer.

Der er løbende udskiftning, så kontakt os endelig, hvis en bolig hos os kunne have din/jeres interesse.

At bo i Agtrup / Sdr. Bjert

Når du flytter ind i din nye seniorbolig i Agtrup Gårdhuse, kommer du til at bo i et aktivt lokalsamfund med kort vej til strand og natur. Indkøbene kan klares indenfor gåafstand, og du er tæt på busforbindelser.

Med andre ord får du det bedste af alle verdner: Rolige og naturskønne omgivelser samt et aktivt lokalsamfund, som ligger tæt på Kolding.

Ofte stillede spørgsmål

Ring til vores udlejningschef Nicolaj Ærøbo Ebbesen på 70 70 28 00 eller send en mail på ne@houseofinnovation.dk

Du kan kontakte os via kontaktformularen oven for, hvis du ønsker at reservere et rækkehus, eller kontakt os direkte på:

 

Vi har en interesseliste, hvor du bliver blandt de første til at høre nyt om boligerne generelt og ledige lejemål.

Depositum er 3 x husleje samt 1 måneds forudbetalt husleje. 

Nej – dog kan der gives dispensation i særlige tilfælde.

Ja, du kan glæde dig til kvalitets hårde hvidevarer, der allerede er installeret ved indflytning. (Særlige ønsker kan imødekommes).